Szczegóły oferty

Alter Investment S.A.. Numer oferty: 11587013

Dom wolnostojący w Gdańskim Wrzeszczu – Jaśkowa
Gdańsk Wrzeszcz
Lokalizacja:
Gdańsk Wrzeszcz
Powierzchnia:
512 m2
Typ nieruchomości:
Dom
Rynek:
mieszkania
Piętro:
Opis nieruchomości

OGŁOSZENIE SPRZEDAŻY – DOM NA ZAMÓWIENIE 

Gdańsk | Falista

Miejska willa premium – działka + projekt + realizacja „pod klucz” w 24 miesięcy od decyzji.

To nie jest dom „z rynku”, który trzeba zaakceptować z kompromisami.
To oferta dla osób, które chcą kupić coś znacznie cenniejszego niż sam budynek: pewność procesu, kontrolę jakości i gotowy rezultat w określonym czasie.

Posiadamy działkę w Gdańsku oraz kompletny projekt architektoniczny nowoczesnej willi miejskiej. Po decyzji klienta przejmujemy cały proces i dostarczamy gotowy dom w ciągu 2 lata.

Co kupujesz?

Gotowy efekt, nie budowę.

* działka w miejskiej lokalizacji Gdańska
* gotowy projekt architektoniczny willi premium
* możliwość personalizacji standardu i wybranych rozwiązań pod Ciebie
* realizacja w modelu „turn-key” (od decyzji do odbioru kluczy)
* jedna odpowiedzialność, jeden harmonogram, jedno rozliczenie


Architektura i standard

Willa zaprojektowana w nowoczesnym, ponadczasowym stylu:

* elewacja premium (płyty elewacyjne typu equitone + aluminiowe lamele)
* duże przeszklenia, światło dzienne i poczucie przestrzeni
* tarasy z systemową hydroizolacją i wykończeniem kompozytowym
* balustrady szklane, czarne detale, minimalistyczna bryła

To dom, który ma wyglądać świetnie nie tylko w dniu odbioru – ale też za 20 lat.

Układ funkcjonalny – pomieszczenia i przeznaczenie

PIWNICA – strefa prywatnej energii

To poziom, który robi różnicę w segmencie premium:
 – siłownia / wellness (możliwość sauny, strefy spa)
 – sala kinowa / klubowa** (wyciszona, z miękkim światłem)
 – pralnia + pomieszczenia techniczne
 – opcjonalnie winiarnia 

PARTER – reprezentacja i codzienne życie

Serce domu zaprojektowane tak, żeby „działało” na co dzień i na gości:

– salon (duże przeszklenia, wyjście na taras, możliwość kominka)
– jadalnia 
– kuchnia z wyspą
– ogród zimowy** – całoroczna strefa kawy / czytelni / relaksu
– WC gościnne
– garderoba wejściowa*

PIĘTRO – komfort rodziny

Strefa prywatna z logicznym podziałem:

– 2-3 sypialnie (dzieci / goście)
– bawialnia / pokój rodzinny – życie poza salonem
– łazienka rodzinna (wanna + prysznic walk-in)
– druga łazienka** (gościnna/prywatna)

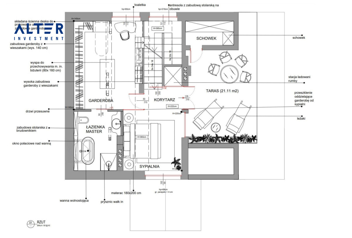
PODDASZE – master level

Prywatny apartament właścicieli:
– sypialnia master z wyjściem na taras
– garderoba walk-in
– łazienka master (wanna, prysznic walk-in, podwójna umywalka, oddzielne WC)
– taras prywatny – poranna kawa bez świadków

GARAŻ 

– garaż czterostanowiskowy 
– opcjonalnie podjazd z rozwiązaniem przeciwoblodzeniowym

Dla kogo jest ta oferta?

Dla osób, które:

– chcą mieszkać w mieście, a nie dojeżdżać z przedmieść
– cenią architekturę i prywatność, ale nie chcą izolacji
– nie chcą „przygody budowlanej” i zarządzania ekipami
– chcą gotowego domu premium w przewidywalnym terminie

Harmonogram

Do 24 miesięcy od decyzji klienta do odbioru gotowego domu.
W tym: doprecyzowanie standardu, przygotowanie wykonawcze, budowa, wykończenie i odbiory.

Zapraszamy do rozmowy i prezentacji koncepcji.

Lokalizacja

    Napisz bądź zadzwoń
    +48 734-172-402