Szczegóły oferty

Alter Investment S.A.. Numer oferty: 11341382

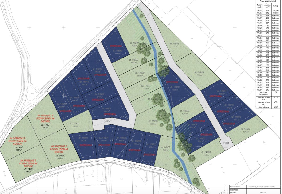
Działka pod budowę domu k. Kolbud
Pomlewo
Lokalizacja:
Pomlewo
Powierzchnia:
1,534 m2
Typ nieruchomości:
Działka
Opis nieruchomości

Unikalne działki pod budowę domów w otoczeniu lasów i jezior.
Skorzystaj z ograniczonej czasowo oferty inwestycyjnej w specjalnych cenach! Kupując poniżej ceny rynkowej, pewnie lokujesz kapitał, który procentować będzie z każdym kwartałem.

Ceny działek już od 67 zł/m2 netto.
Śledząc trendy i tendencje, alternatywą dla niewielkich i drogich mieszkań w mieście pozostają domy i działki za miastem, gdzie w podobnej cenie można wybudować swój własny dom z ogrodem.

Tworzymy wyjątkowy projekt osiedla pod całoroczne domy w miejscowości Pomlewo, z którego dojedziemy do obwodnicy Trójmiasta w 25 minut. W Kolbudach, oddalonych o 10 minut drogi od terenu działek załatwimy niezbędne sprawy, gdyż dostępne jest tam szerokie zaplecze handlowo-usługowe. W wolnym czasie do znanego Jeziora w Przywidzu dotrzemy w kilkanaście minut rowerem. Cała okolica otoczona jest kaszubskimi terenami rekreacyjnymi, licznymi lokalnymi atrakcjami dla dzieci oraz dorosłych, przy czym spokój i harmonię zapewnia nam wszechobecna natura.

Działki znajdują się w miejscowości Pomlewo przy ul. Jodłowej oraz Kasztanowej. Z drogi wojewódzkiej 221 dostaniemy się do nieruchomości drogą gminą.
Media (prąd, woda) są przy drodze.
Teren częściowo zadrzewiony drzewami samosiejnymi. Daje to możliwość pozostawienia na działkach części drzew i nadania im przytulności. Ten wyjątkowy klimat odróżnia to miejsce od okolicznych gruntów.

Działki o powierzchni od ok. 1000 m2 do ok. 2800 m2, w cenach od 67 zł netto.
Aktualna cena ważna jest do 31.03.2026 r. Po tym czasie w związku ze wzrostem wartości gruntu cena może ulec podwyższeniu.

Cena w ofercie dotyczy jednej działki o numerze 149/38.

W sąsiedztwie powstaje  zabudowa domami jednorodzinnymi. Teren jest lekko pagórkowaty, bezpośrednie sąsiedztwo lasów osłania teren od wiatru.

W miejscowości Pomlewo, zaledwie 800 m od działki znajdują się szkoła podstawowa oraz sklep spożywczy.
Ponadto ma tutaj siedzibę Hotel Kozi Gród z bogatą ofertą SPA.

Dla lubiących sporty zimowe w odległości 5 km znajduje się ośrodek narciarski Zielony Stok oraz kolejny oddalony o 10 km ośrodek narciarski Trzepowo.
Dodatkowym atutem jest bliskość pola golfowego Postołowo – 25 km oraz Tokary Golf Club – 27 km.
Gdańsk oddalony jest o 20 km, a Kościerzyna 30 km. 

Dla działek obowiązuje miejscowy plan zagospodarowania przestrzennego o funkcji zabudowy mieszkaniowej jednorodzinnej.

Media:
• Prąd
• Sieć wodociągowa w pobliżu terenu
• Sieć kanalizacyjna w pobliżu terenuw pobliżu terenu

Podczas prezentacji z przyjemnością odpowiemy na wszystkie Państwa pytania.

Cena podana w ogłoszeniu jest netto, należy doliczyć 23% VAT.

Brak opłaty PCC przy zakupie nieruchomości.

Firma Alter Investment S.A. to deweloper gruntowy. Łączymy grunty z wyjątkowymi projektami tworząc szczęśliwe miasto. Działając jako spółka akcyjna zajmujemy się przygotowaniem gruntów pod względem administracyjno-prawnym, a następnie sprzedażą. Nieruchomości nabywamy na terenie całej Polski, a ze szczególną intensywnością w północnej części kraju, skąd się wywodzimy. Mamy wieloletnie doświadczenie w branży nieruchomości.

Nie jesteśmy pośrednikiem, ale właścicielem wszystkich nieruchomości oferowanych do sprzedaży.

Kupując od nas, kupujesz bez dodatkowych kosztów.

Wszystkie przedstawione powyżej informacje dotyczące nieruchomości oraz wskazane ceny mają jedynie charakter informacyjny i nie stanowią oferty handlowej w rozumieniu art. 66 par. 1 Kodeksu Cywilnego.

Lokalizacja

    Napisz bądź zadzwoń
    +48 734-172-402