Szczegóły oferty

Alter Investment S.A.. Numer oferty: 8632715

Działka z pozwoleniem na budowę domu k. Kolbud
Pomlewo
Lokalizacja:
Pomlewo
Powierzchnia:
2,062 m2
Typ nieruchomości:
Działka
Opis nieruchomości

Alter Investment jest deweloperem gruntowym – prężnie działającą spółką akcyjną zajmującą się zwiększaniem wartości nabywanych gruntów poprzez kompleksowe przygotowywanie do procesu budowlanego, łącznie z opracowywaniem koncepcji architektonicznej, projektowaniem architektoniczno-budowlanym, uzyskiwaniem wszystkich uzgodnień i decyzji administracyjnych oraz ostatecznych pozwoleń na budowę.

Naszą misją jest oddanie najlepszego produktu dla klientów i przyszłych użytkowników, a drogą do tego są rozmowy, spotkania, analizy, nieustające poszukiwanie pomysłów mających na celu doskonalenie stosowanych rozwiązań.

Pozycję lidera osiągamy poprzez nieustanną dbałość o jakość każdego detalu naszej działalności.

Kupując od nas, kupujesz bez dodatkowych kosztów.

Opis:

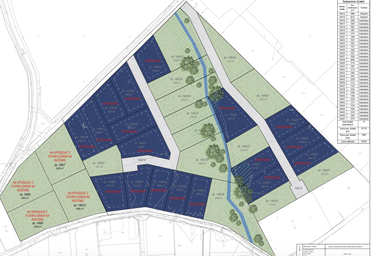
Działki znajdują się w miejscowości Pomlewo przy ul. Jodłowej oraz Kasztanowej. 

Na sprzedaż są 4 działki.
Dz. 149/7 o powierzchni 2062m2
Dz. 149/8 o powierzchni 2062m2
Dz. 149/9 o powierzchni 2064m2
Dz. 149/10 o powierzchni 2062m2

Cena w ofercie dotyczy jednej działki.

Wykonany został projekt budowlany wraz z pozwoleniem na budowę. 

Możliwość zakupu czterech działek.

Aktualna cena ważna jest do 31.03.2026. Po tym czasie w związku z prowadzonym procesem inwestycyjnym cena może ulec podwyższeniu.

Lokalizacja:

Nieruchomość znajduje się w Pomlewie pomiędzy ulicami Jodłową oraz Kasztanową, w pobliżu drogi wojewódzkiej 221, z której dostaniemy się do nieruchomości drogą gminą. Nieruchomość otoczona jest piękną zielenią, w tym dużą liczbą drzew, co czyni ją wyjątkową w porównaniu z okolicznymi gruntami.

W miejscowości Pomlewo, zaledwie 800 m od działki znajdują się szkoła podstawowa oraz sklep spożywczy.
Ponadto ma tu siedzibę Hotel Kozi Gród z bogatą ofertą SPA.
Do Kolbud mamy jedynie 10 km, a dojazd zajmuje tylko ok.10 min. W Kolbudach znajdują się liczne obiekty handlowe, markety, piekarnie, restauracje, szkoła podstawowa z basenem, przedszkola oraz kąpielisko gminne.
Dla lubiących sporty zimowe w odległości 5 km znajduje się ośrodek narciarski Zielony Stok oraz kolejny oddalony o 10 km ośrodek narciarski Trzepowo.
Dodatkowym atutem jest bliskość pola golfowego Postołowo – 25 km oraz Tokary Golf Club – 27 km.
Gdańsk oddalony jest o 20 km, a Kościerzyna 30 km. W pobliżu znajdują się lasy i tereny rekreacyjne.

Dla działki obowiązuje miejscowy plan zagospodarowania terenu o funkcji zabudowy mieszkaniowej jednorodzinnej.

Uchwała Nr XX/206/05 z dn. 10.02.2005 karta 01.M

Media:
• Prąd
• Sieć wodociągowa
• Sieć kanalizacyjna

Podczas prezentacji z przyjemnością odpowiemy na wszystkie Państwa pytania.

Cena podana w ogłoszeniu jest netto, należy doliczyć 23% VAT.

Brak opłaty PCC przy zakupie nieruchomości.

Wszystkie przedstawione powyżej informacje dotyczące nieruchomości oraz wskazane ceny mają jedynie charakter informacyjny i nie stanowią oferty handlowej w rozumieniu art. 66 par. 1 Kodeksu Cywilnego.

Lokalizacja

    Napisz bądź zadzwoń
    +48 734-172-402