Władysławowo – grunt pod zabudowę MWU blisko morza

Alter Investment S.A. Numer oferty: 11553575

Metraż:

3 472 m²

Rodzaj działki:

Budowlane

Media i udogodnienia

Woda

Woda

Podłączona

Gaz

Gaz

Podłączony

Prąd

Prąd

Podłączony

Kanalizacja

Kanalizacja

Podłączona

Dojazd

Dojazd

Brak

Internet

Internet

Podłączony

Opis

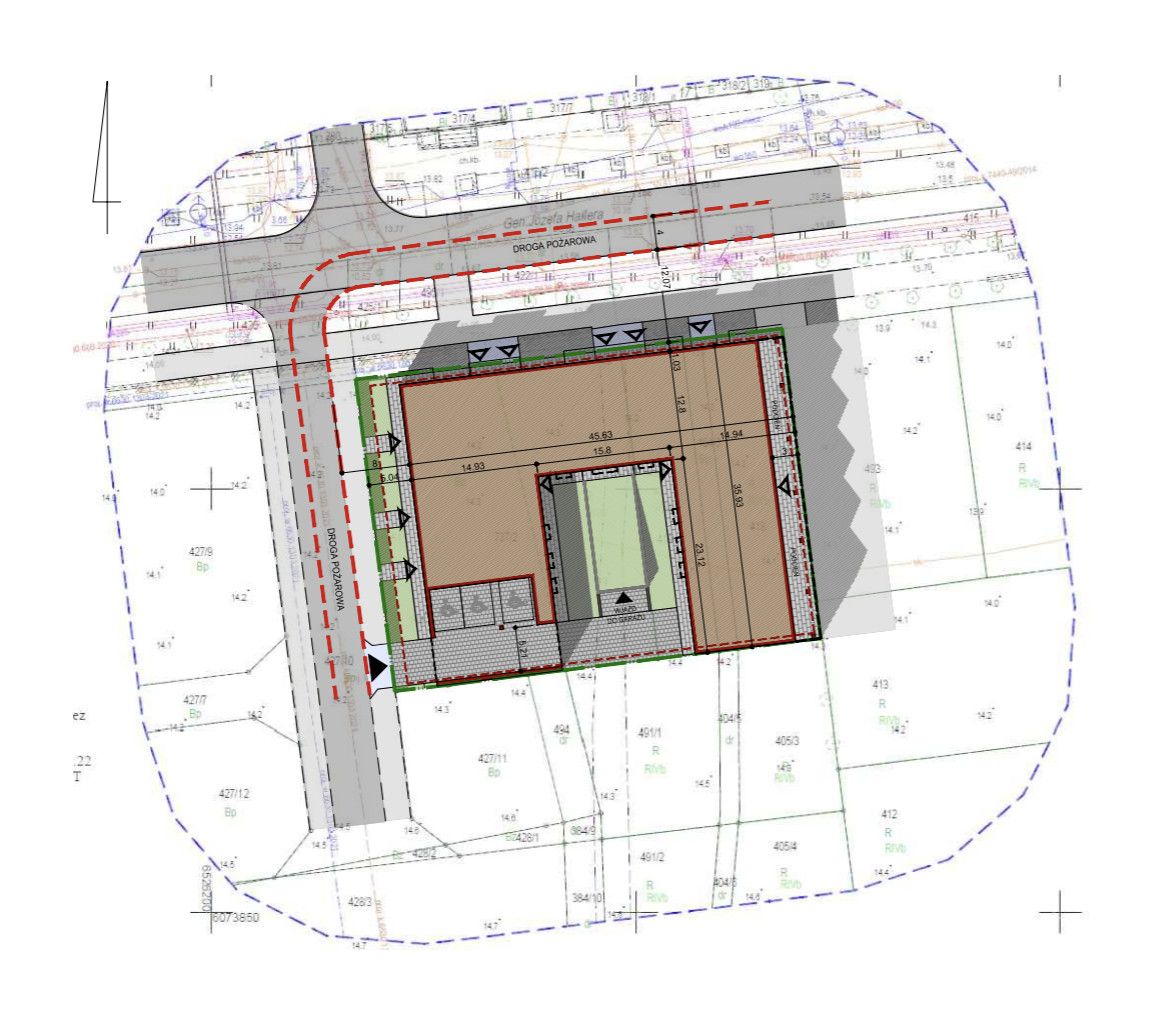
WŁADYSŁAWOWO – GRUNT INWESTYCYJNY W CENTRUM
Teren MWU pod zabudowę mieszkaniową wielorodzinną z usługami w parterze

Na sprzedaż atrakcyjny grunt inwestycyjny w samym centrum Władysławowa – przy ul. Gen. Hallera, głównej osi prowadzącej w kierunku plaży oraz portu. Lokalizacja zapewnia wysoką rozpoznawalność, stały ruch pieszy i samochodowy oraz bardzo dobre warunki do realizacji projektu mieszkaniowo-usługowego.

Najważniejsze parametry

Lokalizacja Władysławowo, ul. Gen. Hallera (centrum)
Powierzchnia działki 1 874 m²
Przeznaczenie MWU – tereny zabudowy mieszkaniowej wielorodzinnej z usługami
Szacunkowy potencjał PUM ok. 2 723,38 m²
Szacunkowy potencjał PUU (usługi) ok. 749,01 m²
Łącznie PUM+PUU ok. 3 472,39 m²
Koncepcja zabudowy 4 kondygnacje nadziemne + 1 kondygnacja podziemna
Mieszkania 52 lokale mieszkalne (średnio ok. 52 m²)
Usługi 7 lokali usługowych w parterze

Aktualna cena ważna do 30.06.2026 r. w związku z prowadzonymi pracami celem uzyskania pozwolenia na budowę.

Atuty lokalizacji
• Centrum Władysławowa – pełna infrastruktura usługowa w bezpośrednim sąsiedztwie (sklepy, restauracje, kawiarnie).
• Położenie przy głównej ulicy prowadzącej w stronę plaży i portu – naturalny ruch turystyczny i całoroczna rozpoznawalność.
• Krótki dystans spacerowy do morza oraz atrakcji nadmorskich – mocny argument sprzedażowy dla mieszkań i usług.
• Miasto o dynamicznym rozwoju i wysokiej popularności wśród turystów – popyt sezonowy i rosnący całoroczny.
Media
• Pełny dostęp do mediów: prąd, woda, kanalizacja, gaz.
• Regularny kształt działki – ułatwia efektywne zaprojektowanie bryły.
Dlaczego warto
• Realny potencjał na projekt mieszkaniowo-usługowy w jednej z najlepszych lokalizacji na polskim wybrzeżu.
• Synergia funkcji: mieszkania + usługi w parterze (lokale handlowe/gastronomia/usługi) w miejscu o wysokim przepływie ludzi.
• Atrakcyjna relacja ceny do potencjału PUM+PUU dla centralnej lokalizacji nadmorskiej.

O sprzedającym
Alter Investment S.A. jest deweloperem gruntowym – zajmujemy się uszlachetnianiem nabywanych nieruchomości poprzez kompleksowe przygotowanie gruntów do procesu inwestycyjnego: od analiz, przez koncepcję i projekt, po uzgodnienia, decyzje administracyjne oraz finalne przygotowanie do realizacji.

Niniejszy materiał ma charakter wyłącznie informacyjny i marketingowy i nie stanowi oferty w rozumieniu przepisów Kodeksu cywilnego ani oferty publicznej.

Rozwiń pełen opis

W pobliżu znajdziesz:

Sprawdź dojazd

2 sklepy

sklepy, kawiarnie i handel centrum Władysławowa

1

zaplecze handlowe (Władysławowo / Puck)

10

Zjazd z autostrady

35000

Apteka

500

Przychodnia

800

Szkoła

1200

Przedszkole

800

Komunikacja

200

Kolej / PKM

300

Park

400

Restauracja

200

Poczta / Paczkomat

300

Plac zabaw

300

Basen

1500

Siłownia

800

Urząd gminy

1000

Policja

1000

Stacja paliw

1500

*Szacowany czas na pieszo

Potrzebujesz sprawdzić dokumenty?

Pobierz pliki

Pozwolenie na budowę

Projekt Techniczny

    Zadzwoń

    Pn. – pt 9:00 – 17:00
    +48 734 172 402
    Skopiowano numer!

    „Każdy projekt zaczyna się od rozmowy. Jeśli szukasz gruntu z realnym potencjałem, mój zespół poprowadzi Cię przez cały proces.”

    Damian Tomasik Prezes zarządu Alter Investment
    lub

    Zostaw numer, a oddzwonimy do 24 godzin

      Twoje dane są bezpieczne